Description
Well presented first floor apartment within walking distance of Dursley town centre. Open plan lounge/kitchen/diner with cooker, master bedroom with ample storage space and shower room. Newly decorated and floor coverings. Further benefits include shared outdoor terrace, allocated parking space and electric heating. Council Tax Band A. Energy Rating E.
Situation
This conveniently located first floor apartment is a short walk from Dursley town centre and offers an ideal position to nearby transport amenities. Dursley town centre has a wide range of facilities including: Sainsbury's supermarket, library, swimming pool and an eighteen hole golf course at Stinchcombe Hill. Within a short walk is Rednock comprehensive school in Dursley and Cam has a choice of four primary schools. Commuting to the larger centres of Gloucester, Bristol and Cheltenham is made easily accessible via the A38 and M5/M4 motorway network. Cam and Dursley 'Park and Ride' railway station can be found in Box Road in Cam, and the station has onward connections to the National Rail network.
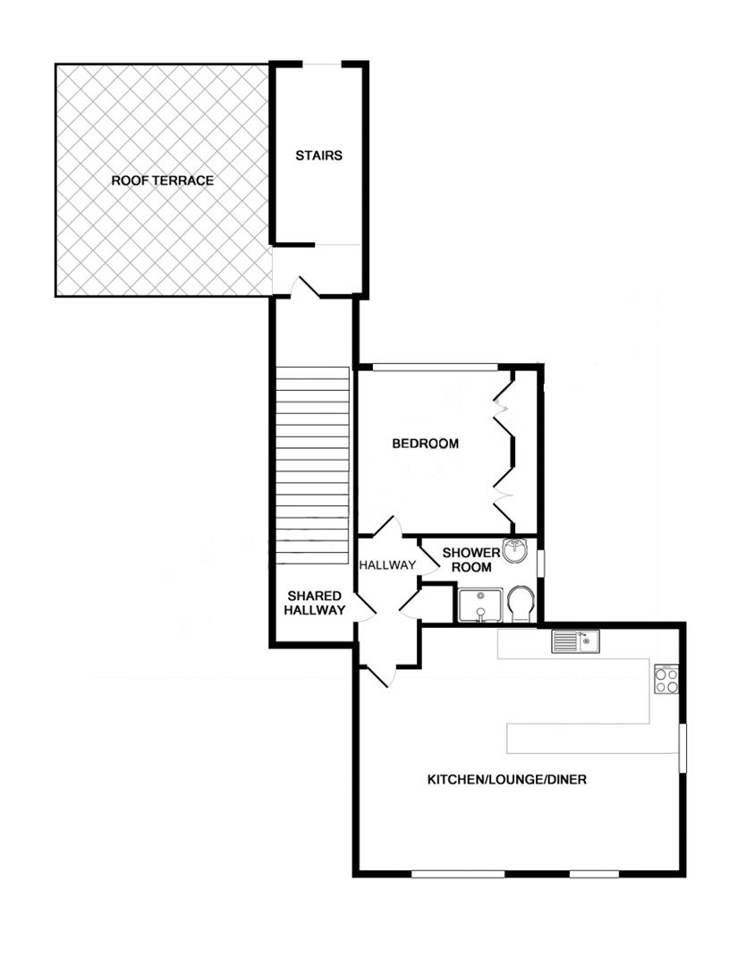
Accommodation
(Please note that our room sizes are quoted in metres to the nearest one hundredth of a metre on a wall to wall basis. The imperial equivalent (included in brackets) is only intended as an approximate guide).
Communal Stairwell
Communal entrance hall and stairwell shared by three properties.
Entrance Hall
Vinyl flooring, storage cupboard and intercom system.
Open Plan Lounge / Kitchen / Diner (6.49 x 4.85)
Dual aspect kitchen area with a range of wood effect wall and base units, elecctric cooker, laminate flooring. Spacious living dining areas with newly laid carpet, electric fire and electric heaters.
Bathroom
White suite comprising of wash basin, wc, shower cubicle, chrome towel radiator, bathroom cabinet. Vinyl flooring and window to the side.
Bedroom (3.56 x 3.07)
Carpeted flooring, double glazed windows to the rear. Built in wardrobes with further eaves storage space.
Externally
Benefitting from access to shared outdoor terrace and one allocated parking space.
Agents Note
Available Date: 31st March 2026
Minimum Tenancy Length: 6 months
Deposit: £923
Council Tax Band: A
Energy Rating: E
Minimum Annual Income Requirement: £24000
Unfurnished
Utilities: Mains Electric, Water and Sewerage are connected.
Standard Meters
Broadband: Asymmetric Digital Subscriber Line
For mobile signal and wireless broadband: Please see www.checker.ofcom.org.uk for more information