Immaculately presented detached family home in tucked away end of cul-de-sac position, four double bedrooms, panoramic views to front with further views to rear, gardens to front side and rear with driveway parking, spacious and versatile accommodation arranged over three floors, three reception rooms plus sun room, entrance hallway, lounge, open plan kitchen/breakfast room, second reception room, cloakroom/utility room, sun room, three first floor bedrooms, master with dressing room plus en-suite bathroom, further family bathroom/3rd WC, top floor bedroom, low maintenance gardens with artificial lawns and patios. Energy Rating: D.
SITUATION
The property is located in a tucked away position on a cul de sac in the sought after area of Westend and is within walking distance of a small range of shops, including: mini-market, hairdressers, butchers shop, and Cam Woodfield Primary School. The established Leaf & Ground cafe and organic shop is within close proximity offering fresh local produce. Cam has a wider range of facilities including: Tesco supermarket and a 'Park and Ride' railway station with regular services to Gloucester, Cheltenham and Bristol. Dursley town offers a more comprehensive range of retailers along with Sainsbury's supermarket, library, leisure centre and eighteen hole golf course. Commuting to the larger centres of Gloucester, Bristol and Cheltenham are made easily accessible via the A38 and the M4/M5 motorway network.
DIRECTIONS
From Dursley town centre, proceed out of the town in a north westerly direction on the A4135, continuing straight across at the first mini roundabout, at the second mini roundabout take the first exit onto the B4066 and continue for approximately half a mile and as the road bears round by the former Yew Tree public house, turn right into The Quarry and proceed, passing Orchard Leaze on your left, continue past the little Chapel on your right. Taking the next turning into Westend on the left, continue down the small incline and number 12 can be found straight ahead and slightly to the left.
DESCRIPTION
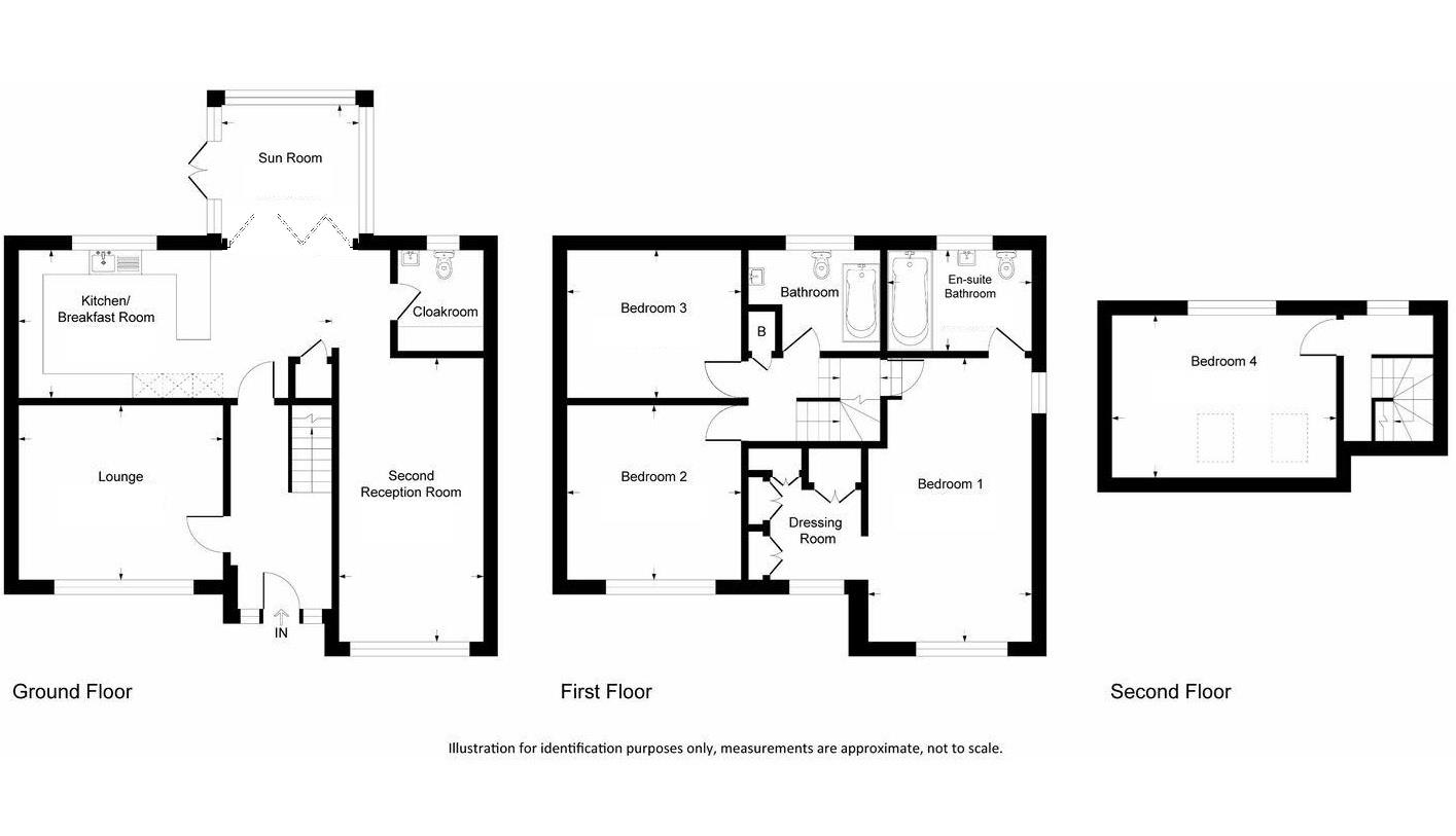
This property has been in the same ownership for over two and a half years with the current owner carrying out many updates and modernising throughout. The property now benefits from a garage conversion which has created a third reception room. A modern open plan kitchen/breakfast room has been installed to a high standard with integrated appliances which also has wooden bi-fold doors to the sun room to rear. The property benefits from updated cloakroom/utility, en-suite bathroom and family bathroom, internal doors, decoration and flooring throughout. Externally the gardens have been landscaped and are low maintenance with artificial lawns, patios and new driveway to front. The property briefly comprises; entrance hallway, lounge, kitchen/breakfast room, sun room, cloakroom/utility room and second reception room. On the first floor there are three bedrooms, master having en-suite bathroom and dressing room and further family bathroom. On the top floor there is a spacious attic room.
THE ACCOMMODATION
(Please note that our room sizes are quoted in metres to the nearest one hundredth of a metre on a wall to wall basis. The imperial equivalent (included in brackets) is only intended as an approximate guide).
CANOPY PORCH
ENTRANCE HALLWAY
Double glazed front door and panel, radiator, stairs to first floor.
LOUNGE (4.55m x 3.67m)
Double glazed window to front, radiator.
KITCHEN/BREAKFAST ROOM (6.55m x 3.09m)
Fitted kitchen with base and wall units, laminated work surfaces over, composite sink and drainer, space and plumbing for washing machine integrated dishwasher, electric oven and grill, separate electric hob with hood over, integrated American fridge freezer, radiator, storage cupboard, double glazed window to garden, bi-fold doors to:
SUN ROOM (2.94m x 2.89m)
Double glazed windows and French doors to garden, radiator.
SECOND RECEPTION ROOM (5.94m (max) x 3.01m)
Double glazed window to front, radiator.
CLOAKROOM/UTILITY ROOM
Base units, roll top laminated work surfaces over, space and plumbing for tumble dryer, low level WC, wash hand basin with pedestal, double glazed window to rear.
ON THE FIRST FLOOR
LANDING
Stairs to top floor, airing cupboard with gas boiler,
BEDROOM ONE (5.76m x 3.46m (max))
Double glazed window to front, radiator, door to:
DRESSING ROOM
Variety of fitted wardrobes, radiator, double glazed window to front.
EN-SUITE BATHROOM
Large corner bath, vanity wash hand basin, low level WC, heated towel rail, double glazed window to rear.
BEDROOM TWO (3.62m x 3.60m)
Double glazed window to front, radiator.
BEDROOM THREE (3.57m x 3.18m)
Double glazed window to rear, radiator.
ON THE TOP FLOOR
BEDROOM FOUR (4.71m x 3.41m)
Double glazed window to rear and two double glazed Velux windows, radiator, storage cupboard.
EXTERNALLY
To the rear of the property there is a patio with steps leading to artificial lawn with flower borders and planters. Side gate leads to further artificial lawn area with driveway parking to front for two cars and further tarmac area opposite the property providing further parking.
AGENTS NOTE
Tenure: Freehold.
All mains services are believed to be connected. Gas central heating. There is a water meter.
Council Tax Band: F
Broadband: Fibre to the Premises
For mobile signal and wireless broadband: Please see www.checker.ofcom.org.uk for more information
FINANCIAL SERVICES
We may offer prospective purchasers' financial advice in order to assist the progress of the sale. Bennett Jones Partnership introduces only to Kingsbridge Independent Mortgage Advice and if so, may be paid an introductory commission which averages £128.00.
VIEWING
By appointment with the owner's sole agents as over.