Newly constructed four bedroom spacious Cotswold stone chalet house, non-estate village location, air source heating with ground floor having underfloor heating and radiators on the first floor, living room with vaulted ceiling, large farmhouse kitchen/dining room, two double ground floor bedrooms with shower room, two further large double first floor bedrooms, both having en suite shower rooms, bedroom two with dressing room off, good size garden, parking, double car port. Must be seen. EPC A
SITUATION
This newly constructed detached chalet house is located close to the centre of the very popular village of Kingswood. The village caters for day-to-day amenities including convenience shop/post office, primary school, fitness centre and the sought after Katherine Lady Berkeley comprehensive school all being within walking distance. The nearby vibrant Cotswold market town of Wotton-under-Edge is just one mile away where there are a range of independent retailers, supermarket, primary schools, doctors and dentist surgeries and it has it's own swimming pool and cinema. The property is situated within five miles of the M5 motorway and the A38, which give easy access throughout the South West.
DIRECTIONS
From the War Memorial in Wotton-under-Edge proceed in a Westerly direction out of the town on the B4058 for approximately 300 metres, taking the turning left into Bear Street and continue for approximately half a mile turning left signposted Kingswood on the B4060 passing Katherine Lady Berkeley school on the right-hand side. Continue into the village passing the garage on the left just as you pass the tennis courts turn right prior to the War Memorial into Charfield Road. Continue for approximately 100 metres and the private driveway will be found on the left-hand side and the property is immediately on the right.
DESCRIPTON
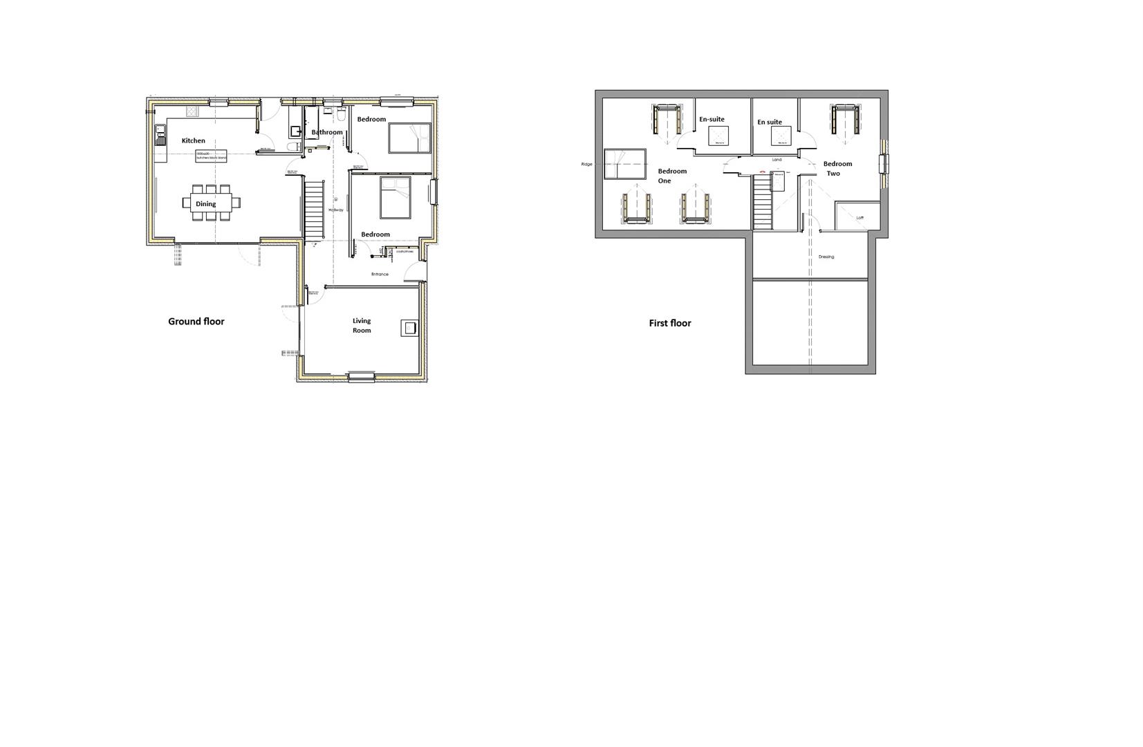
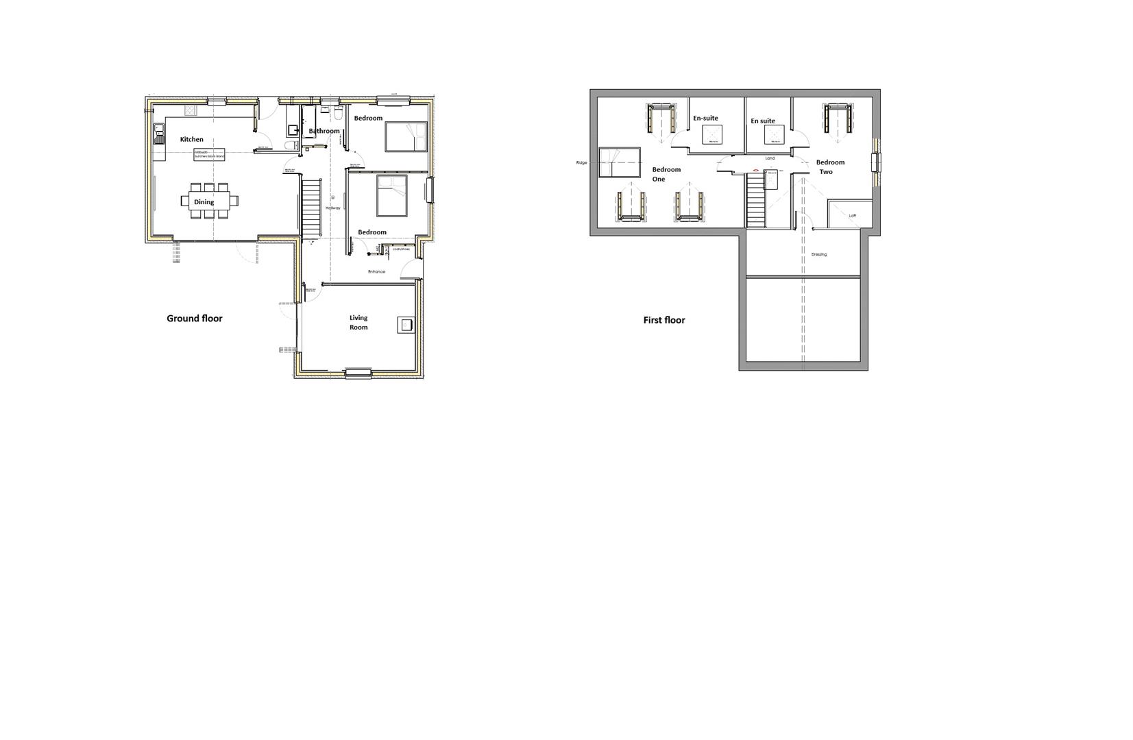
This newly constructed spacious four bedroomed chalet style house is constructed to a high standard by reputable local developers with stone front elevation with attractive grey windows and doors, along with fascias and black guttering. The property has air source electric underfloor heating to the ground floor with radiators on the first floor. The property sits on a good size plot and has double car port and parking for a number of cars. The property is accessed via entrance hall heading to large living room, with vaulted ceiling and bi-fold patio doors leading onto the garden. There is a spacious farmhouse kitchen/dining room with central island and will incorporate double oven, hob, fridge, freezer and bi-fold patio door opening onto garden. There is also an adjoining utility. The flexible ground floor accommodation also has two double bedrooms, along with family bathroom. On the first floor there are two extremely large double bedrooms, the master bedroom with en suite shower room and three dormer windows. Bedroom two also has a further en suite shower room, along with adjoining dressing room. All rooms with be wired for fast connectivity. The property will have solar panels and battery storage, along with electric car charging.
THE ACCOMMODATION
(Please note that our room sizes are quoted in metres to the nearest one hundredth of a metre on a wall to wall basis. The imperial equivalent (included in brackets) is only intended as an approximate guide).
ON THE GROUND FLOOR
ENTRANCE HALL
Having stairs to first floor.
LIVING ROOM (5.47m x 4.10m)
Having bi-fold doors to rear, attractive vaulted ceiling.
FARMHOUSE KITCHEN/DINING ROOM (7.00m narrowing to 4.82m x 7.00m)
Having attractive range of wall, tall and base units, island and breakfast bar with sink unit, inset hob, double oven, fridge freezer, large dining space, bi-fold doors leading onto garden.
UTILITY (2.10m x 2.25m)
Having double glazed door to side, range of base units, plumbing for washing machine, sink unit.
BEDROOM THREE (3.83m x 3.43m)
Having double glazed window.
BEDROOM FOUR (3.83m x 3.20m)
Having double glazed window.
BATHROOM
Having panelled bath, wash hand basin and WC.
ON THE FIRST FLOOR
LANDING
MASTER BEDROOM (4.55m x 2.95m plus eaves)
Having radiator, three dormer windows.
EN SUITE SHOWER ROOM
Having wash hand basin, WC, shower cubicle.
BEDROOM TWO (2.95m x 2.5m plus eaves)
Having double glazed window, further dormer window, radiator, dressing room/store off.
SHOWER ROOM
Having wash hand basin, WC, shower cubicle.
EXTERNALLY
The property will be accessed via private shared driveway, communal access to parking area and onto double car port. Gardens are of a good size and enclosed by post and rail fencing and hedging.
AGENT NOTES
Tenure: Freehold
Services: Mains electricity, water and drainage are connected. Heat air source heating with underfloor heating to ground floor and radiators to first floor.
The property is in the early stages of construction and there may be the opportunity for modifications to be made to the kitchen, bathroom and layout.
Council Tax Band: TBC
Warranty: The property will come with a Build Zone ten year builder warranty.
Broadband: No broadband service set up at the property.
For mobile signal and wireless broadband: Please see www.checker.ofcom.org.uk for more information
VIEWING
By appointment with the owner's sole agents as over.
FINANCIAL SERVICES
We may offer prospective purchasers' financial advice in order to assist the progress of the sale. Bennett Jones Partnership introduces only to Kingsbridge Independent Mortgage Advice and if so, may be paid an introductory commission which averages £128.00.