Spacious three bedroom semi-detached house in village location, much improved over recent years, entrance hall, modern fitted kitchen, living room, three bedrooms, bathroom, gas central heating, on street parking, recently updated and fitted flooring. Energy Rating: D.
SITUATION
The property is situated in the popular hamlet of Newtown, and the adjoining village of Sharpness has its own primary school and post office/convenience store. The historic town centre of Berkeley is just two miles distance, which offers a wider range of shopping facilities along with doctors surgery, Berkeley Castle, and The Edward Jenner Museum. Commuting to the larger centres of Gloucester, Bristol and Cheltenham is made easily accessible via the A38 and M5/M4 motorway network.
DIRECTIONS
From the A38 proceed towards Berkeley on the B4066, at the roundabout take the second exit on the bypass road and continue to the next roundabout, taking the second exit and proceed along this road turning right signposted Newtown and Sharpness, proceed under the railway bridge and continue, taking the third turning on the left; which is after approximately half a mile, into Baylands and continue taking the second turning on the right and number 32 will be located on the right hand side.
DESCRIPTION
The accommodation has been well maintained and provides spacious accommodation throughout. The rear gardens are a particular feature of the property with store shed/workshop. The accommodation briefly comprises: entrance hallway, lounge/dining room, modern kitchen, three bedrooms and bathroom and external store. The property has gas fired radiator central heating and double glazing.
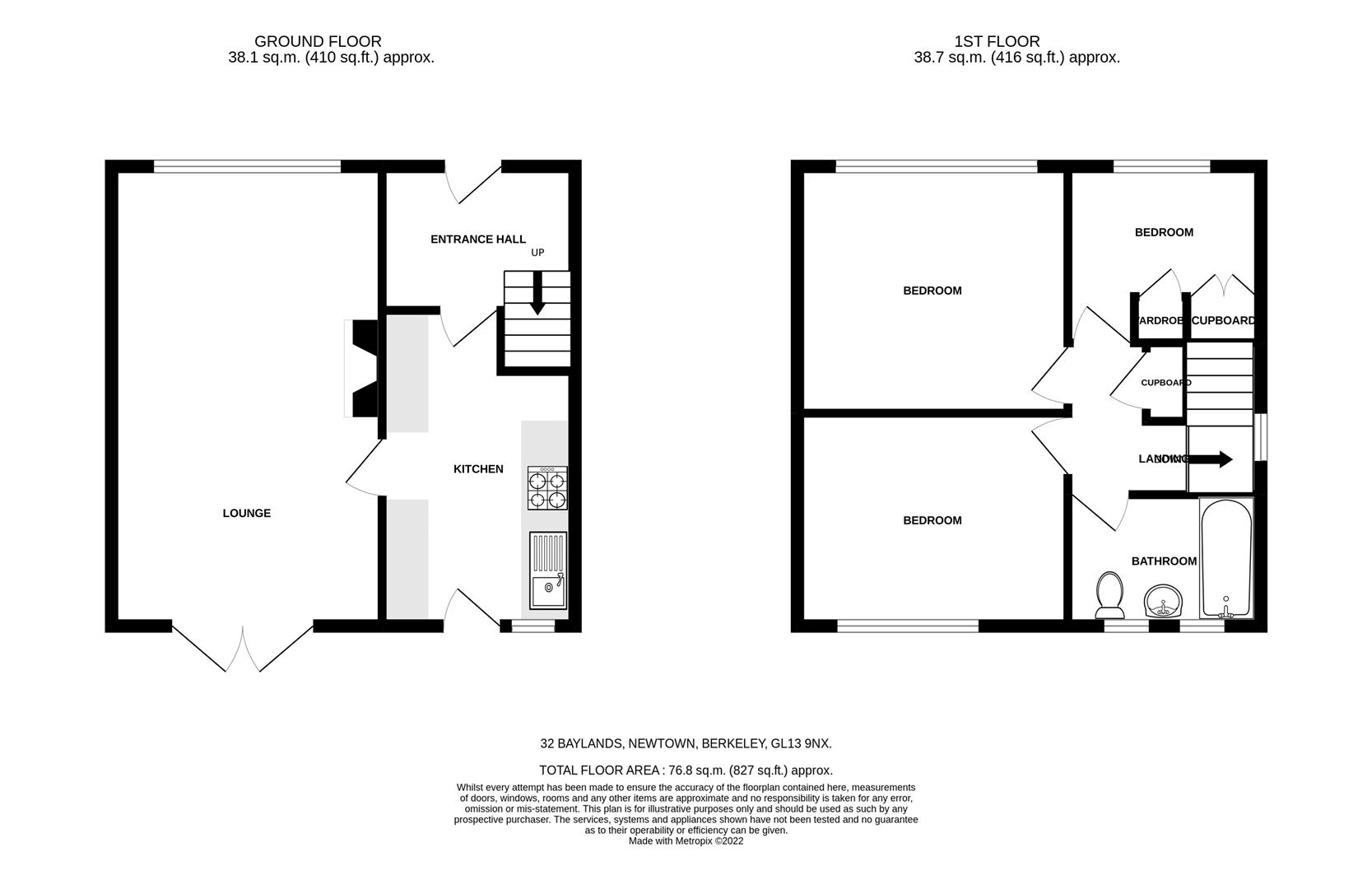
THE ACCOMMODATION
(Please note that our room sizes are quoted in metres to the nearest one hundredth of a metre on a wall to wall basis. The imperial equivalent (included in brackets) is only intended as an approximate guide).
ENTRANCE HALLWAY
Having double glazed front door and double glazed side screen, double radiator and wood block flooring.
KITCHEN (4.14m x 2.57m narrowing to 1.47m)
Having a range of modern wall, tall and base units with laminated work surface over, stainless steel single drainer sink unit, inset gas hob with extractor hood over, built in double oven, double glazed door and window to rear, plumbing for washing machine and radiator.
LIVING/DINING ROOM (6.72m x 3.63m)
Having been newly refurbished with double glazed window to front and double glazed french doors to rear, two radiators.
ON THE FIRST FLOOR
LANDING
Having double glazed window to side, airing cupboard and radiator.
BEDROOM ONE (3.65m x 3.32m)
Having double glazed window to side, airing cupboard and radiator.
BEDROOM TWO (3.64m x 2.8m)
Having double glazed window, and radiator.
BEDROOM THREE (2.55m x 1.79m widening to 2.35m)
Having double glazed window, radiator, and airing cupboard housing gas central heating boiler.
BATHROOM
Having panelled bath with electric shower over, wash hand basin, WC, two double glazed windows, and radiator.
EXTERNALLY
To the front of the property the shallow open plan front garden and path leads to the front door. Path leads to the side of the property and onto pedestrian gate giving access to the rear garden, which is enclosed and laid to lawn with flower borders, two patios and brick built GARDEN SHED (2.79m x 1.57m).
AGENTS NOTE
All mains services are understood to be connected.
Gas fired radiator central heating.
Council Tax Band: 'B'.
Tenure: Freehold.
Broadband: Fibre to the Premises
For mobile signal and wireless broadband: Please see www.checker.ofcom.org.uk for more information
There is a wayleave for the MEB which relates to underground cables.
FINANCIAL SERVICES
We may offer prospective purchasers' financial advice in order to assist the progress of the sale. Bennett Jones Partnership introduces only to Kingsbridge Independent Mortgage Advice and if so, may be paid an introductory commission which averages £128.00.
VIEWING
By appointment with the owner's sole agents as over.