Recently upgraded attractive older style bay fronted semi-detached house, good sized driveway with ample off road parking, entrance hall, extended living room, bay fronted dining room, good sized kitchen, ground floor WC/utility room, three good sized first floor bedrooms, newly fitted family bathroom, attractive sash double glazed windows, gas central heating, no onward chain, energy Rating: D
SITUATION
The property is set on this extremely popular road between Cam and Dursley centres. Situated at the base of the Cotswold escarpment and close to local beauty spots in both the Severn Vale and the Cotswolds, with the popular villages of Frampton on Severn and Slimbridge, and Cotswold villages including Uley. Nearby facilities can be found in Cam, which has a range of shops including: Tesco supermarket and local traders, including post office, hairdressers and chemist. The village also has doctors and dentist surgeries and a choice of three primary schools. Dursley, which is approximately one mile distance, offers a wider range of shopping facilities including: Sainsbury's supermarket and both primary and secondary schooling. Dursley town has a swimming pool, sports centre, library, and an 18 hole golf course at Stinchcombe Hill. The larger centres of Gloucester, Bristol and Cheltenham are made accessible via the A38 and M5/M4 motorway network. Cam has a 'Park and Ride' railway station with regular services to Gloucester and Bristol and connections to the National Rail Network.
DIRECTIONS
From Dursley town centre proceed north west out of town on the A4135, turning right after the Fire Station (opposite Lidl), into Kingshill Lane, follow this road to the bottom and as the road bears right, turn left into Everlands, continue for approximately 100 metres and 42 Everlands will be found on the left hand side.
DESCRIPTION
This most attractive bay fronted semi-detached house was constructed circa 1913 with brick elevations under a tiled roof. The property has double glazed sash windows to most of the property and has been extended with the addition of a kitchen extension to the side, along with an extension to the living room to the rear. The property has been recently upgraded including the replacement of the bathroom, redecoration and brand new floor coverings. Properties of this type and in this location rarely become available and we suggest viewing at your earliest opportunity.
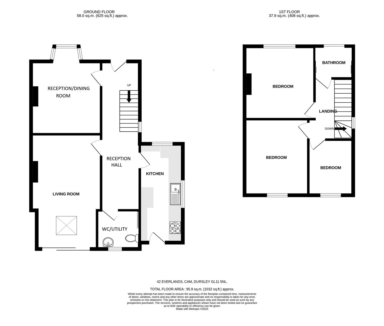
THE ACCOMMODATION
(Please note that our room sizes are quoted in metres to the nearest one hundredth of a metre on a wall to wall basis. The imperial equivalent (included in brackets) is only intended as an approximate guide).
ON THE GROUND FLOOR
RECEPTION HALL
Very spacious reception hall with multi-functional potential uses, eg work from home office and storage spaces, having newly fitted double glazed period style front door, stairs to first floor, radiator.
LIVING ROOM (5.77m x 3.4m (narrowing to 2.91m))
Having patio doors to rear, radiator and roof light.
SECOND RECEPTION ROOM (4.18m x 3.41m)
Having double glazed bay window to front, radiator.
KITCHEN (4.8m x 2.09m)
Having a range of wall and base units with laminated work surfaces over, integrated fridge, integrated freezer, gas hob, with cooker hood over, built-in oven, double glazed windows to front and side, part glazed door to rear, wall mounted gas combination boiler supplying radiator central heating and domestic hot water,
WC/UTILITY
Good size ground floor WC/utility with plumbing and power for washing machine and tumble dryer.
ON THE FIRST FLOOR
LANDING
Double glazed window to side and access to very large loft space, which may have potential for conversion, subject to planning/building control agreement.
BEDROOM ONE (3.59m x 3.42m)
Having two double glazed sash windows to front radiator.
BEDROOM TWO (3.71m x 3.09m)
Having double glazed sash window to rear, radiator.
BEDROOM THREE (2.72mx 2.18m)
Having double glazed sash window to rear, radiator, picture rail.
BATHROOM
Having newly fitted suite with panelled bath with over bath shower shower, toilet, basin, towel radiator, double glazed sash window.
EXTERNALLY
The property is bound by hedging and fencing with tarmacadam driveway leading to large parking area. The rear garden comprises patio area, lawn, new garden shed and must be seen to be fully appreciated.
AGENT NOTES
Tenure: Freehold
Services: All mains services are understood to be connected.
Council Tax Band: D
Rights of way - share vehicular right of way reserved across first 5m of driveway.
Broadband: Overhead/underground wire (not fibre).
For mobile signal and wireless broadband: Please see www.checker.ofcom.org.uk for more information
VIEWING
By appointment with the owner's sole agents as over.
FINANCIAL SERVICES
We may offer prospective purchasers' financial advice in order to assist the progress of the sale. Bennett Jones Partnership introduces only to Kingsbridge Independent Mortgage Advice and if so, may be paid an introductory commission which averages £128.00.