Spacious three bedroom terraced house, close to village centre. Entrance hall, cloakroom/WC, integral garage, good sized upper ground floor living room/dining room, modern fitted kitchen, three bedrooms, bathroom/second 2nd WC, level garden with shrubs. Council Tax Band: 'C', Energy Rating: 'C'
SITUATION
This terrace house occupies a convenient location in Cam and is within walking distance of local village facilities including Tesco superstore, a number of independent retailers including chemist, hardware store, doctors and dentist surgeries and a choice of primary schools. The adjoining town of Dursley offers a wider range of shopping facilities together with Rednock Comprehensive School, community centre, sports hall, library and swimming pool. The property is well placed for travel throughout the south west including the larger centres of Gloucester, Bristol and Cheltenham via the A38 and M5/M4 motorway network. The Cam and Dursley `Park and Ride` railway station is situated on the outskirts of Cam and has regular services to Gloucester and Bristol with connections to the national rail network.
DIRECTIONS
If travelling from Dursley proceed out of town on the A4135 (Kingshill Road) in a north-westerly direction and at the third mini roundabout take the second exit proceeding to the bottom of Cam Pitch. At the next roundabout with the Tesco store directly in front of you and take the third exit into Chapel Street and proceed to the end of the road bearing left into Station Road and the property will be found after 100m on the left hand side.
DESCRIPTION
This well proportioned town house is just one of four constructed in the 1970s by a well-known local builder. The property has both double glazing and gas central heating. The accommodation is laid out on three floors with spacious accommodation which is accessed via entrance hall leading to cloakroom/WC. There is a large walk-in storage cupboard and door to integral garage. Stairs lead to the upper ground floor and to a good sized lounge/dining room with double glazed French doors leading to garden. The dining area gives access to the kitchen which has a range of wall and base units, breakfast bar and solid wood work surfaces. On the second floor there are two double bedrooms along with a single bedroom and bathroom. The rear gardens have recently been reseeded and are enclosed with pedestrian gate providing rear access. The property must be seen to be fully appreciated, and we suggest viewing at your earliest opportunity.
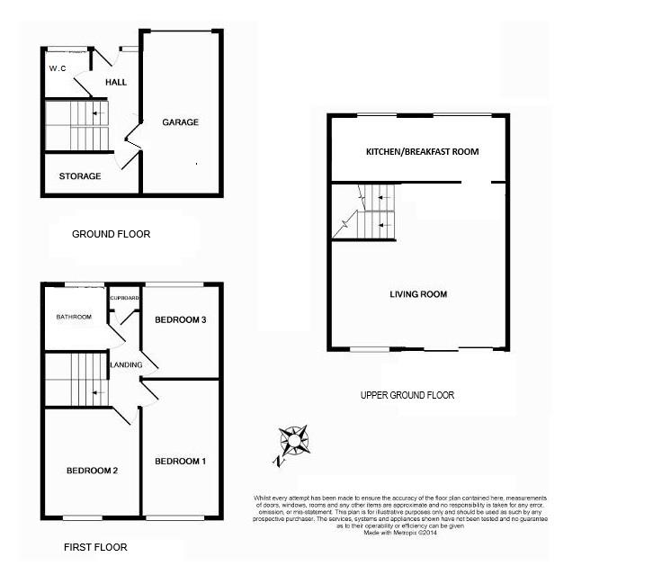
THE ACCOMMODATION
(Please note that our room sizes are quoted in metres to the nearest one hundredth of a metre on a wall to wall basis. The imperial equivalent (included in brackets) is only intended as an approximate guide).
ON THE GROUND FLOOR
ENTRANCE HALL
Double glazed front door and side screen, radiator, large storage cupboard.
CLOAKROOM
Having wash hand basin, WC, double glazed window and radiator.
GARAGE (4.82m x 2.46m)
Having electric up-and-over door and personal door to house.
UPPER GROUND FLOOR
LOUNGE/DINING ROOM (5.56m x 5.06m narrowing to 3.27m)
Having patio door to rear, double glazed window to rear, double and single radiators, stairs to second floor and opening to:
KITCHEN/BREAKFAST ROOM (5.42m x 2.1m)
Having a range of modern wall and base units with solid wood work surfaces over, inset stainless steel single drainer sink unit, inset ceramic hob, plumbing for washing machine and dishwasher, space for fridge/freezer, breakfast bar, radiator, tiled floor and Vaillant combination boiler supplying radiator central heating and domestic hot water.
ON THE FIRST FLOOR
LANDING
Having linen cupboard with radiator and shelving.
BEDROOM ONE (4.0m x 2.41m)
Having double glazed window to rear and radiator.
BEDROOM TWO (3.0m x 3.0m)
Having double glazed window to rear and radiator.
BEDROOM THREE (2.75m x 2.47m)
Having double glazed window to front and radiator.
BATHROOM
Having white suite comprising wash hand basin, WC, bath with mixer shower over, double glazed window and stainless steel ladder towel rail.
EXTERNALLY
To the front of the property, there is a driveway with parking space leading to garage. There is further gravelled hard parking area and shrub border leading to recessed porch. There is rear pedestrian access from Rowley into the rear garden, which is enclosed by fencing with pedestrian gateway. The lawn has been recently reseeded and has shrubs and tree.
AGENTS NOTES
Tenure: Freehold.
Services: All mains services are understood to be connected. There is a water meter.
Gas fired radiator central heating. Boiler replaced 2018.
Council Tax Band: 'C'
Rights of way - the property has a right of way to the rear garden.
Broadband - Asymmetric Digital Subscriber Line
For mobile signal and wireless broadband: Please see www.checker.ofcom.org.uk for more information
FINANCIAL SERVICES
We may offer prospective purchasers' financial advice in order to assist the progress of the sale. Bennett Jones Partnership introduces only to Kingsbridge Independent Mortgage Advice and if so, may be paid an introductory commission which averages £128.00.
VIEWING
By appointment with the owner's sole agents as over.