Attractive apartment in historic Grade II Listed former hospital in town centre location and presented to a high standard. Accommodation comprises of communal entrance hall, open plan kitchen/lounge/diner with built in appliances, double bedroom, bathroom and spacious inner hallway. Further benefits include communal gardens, gas central heating, allocated parking space. Energy Rating C. Council Tax Band A
SITUATION
This well presented character property is located in the popular historic town centre of Berkeley which is famous for its Castle and Jenner museum. The attractive town centre has a range of local retailers along with library, doctors surgery and primary school and is well placed for access to the adjoining towns of Thornbury and Dursley. Both towns have a wider range of shopping facilities along with leisure facilities including swimming pool, golf courses and gyms. Cam/Dursley 'Park and Ride' railway station is within a ten minute drive which provides easy access to Gloucester, Bristol and Cheltenham and onward connections to the National Rail Network. The town is also well placed for access to the A38 and M5/M4 motorway network.
DIRECTIONS
If travelling from the M5 or A38 follow the signs for Berkeley, on entering the town via Canonbury Street proceed passing the Castle on the left hand side and continue for approximately two hundred metres bearing right into Marybrook Street and continue for approximately 80 metres and Fitzhardinge House will be found on the right hand side and parking is labelled no. 5 to the side of the left hand side of the building.
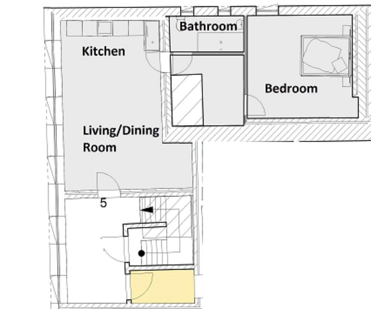
DESCRIPTION
This beautifully renovated property offers excellent living space. On entering the main communal entrance, stairs lead up to the first floor landing with attractive windows to the front and apartment 5 on the right hand side. The property opens into the open plan living area with high ceilings and triple windows to the front, this beautiful space is bright and airy and incorporates the dining and kitchen area, an inner hallway offers storage space and cupboard leads to a good size bathroom with shower over bath and double bedroom with attractive beam. Externally the property comes with a communal garden and rear access gate to parking area for convenience.
ACCOMMODATION
(Please note that our room sizes are quoted in metres to the nearest one hundredth of a metre on a wall to wall basis. The imperial equivalent (included in brackets) is only intended as an approximate guide).
COMMUNAL ENTRANCE HALL
Accessed via a communal front door with intercom system, an imposing reception hall with tiled floor, sash window, access to mail boxes and stairs to first floor.
KITCHEN/LOUNGE/DINER (7.04m x 5.01m (narrowing to 3.98m))
Attractive living area with entrance door, with beautiful three sash windows to front offering ample light, two radiators, well maintained tranquil space for lounging and dining and leading on to the kitchen area comprises a range of modern wall and base units with laminated work surfaces over incorporating inset sink unit, inset four ring gas hob with stainless steel hood over, plumbing for washing machine, integrated slimline dishwasher, space for fridge/freezer and built in oven, Ideal gas boiler supplying central heating and domestic hot water and vinyl flooring, a door leading to:
INNER HALLWAY
Having good space and built in storage cupboard.
BEDROOM (4.47m into bay window narrowing to 4.07m x 3.30m)
Beautiful high ceiling with beam, radiator and sash window to side.
BATHROOM
White suite comprising pedestal wash hand basin, WC, bath with mains shower over, shower screen, two windows to side, ladder radiator, extractor fan.
EXTERNALLY
To the rear of the building is a large communal walled garden with access via the internal reception area or from the external side gate leading from the allocated parking area.
AGENT NOTES
Tenure: Leasehold
Services: All mains services are connected.
Council Tax Band: A
Grade II Listed
Leasehold: 999 Years from 1st October 2017.
Management Charge: £150 per month payable to Cambray Property Management.
Broadband: Unknown
For mobile signal and wireless broadband: Please see www.checker.ofcom.org.uk for more information
VIEWING
By appointment with the owner's sole agents as over.
FINANCIAL SERVICES
We may offer prospective purchasers' financial advice in order to assist the progress of the sale. Bennett Jones Partnership introduces only to Kingsbridge Independent Mortgage Advice and if so, may be paid an introductory commission which averages £128.00.