Modern top floor apartment within walking distance of town centre, garage, two double bedrooms, open plan kitchen/lounge/diner, bathroom with shower over bath, entrance hall with airing cupboard, gas central heating and double glazing, ideal investment/first time buyer opportunity,
Energy Rating C.
SITUATION
This top floor apartment is situated in walking distance to Dursley town centre. The town has a range of amenities which include independent retailers, supermarkets, doctors and dentists’ surgeries, swimming pool, public houses, cafes and restaurants, library, along with comprehensive and primary schooling. The adjoining village of Cam has a 'Park and Ride' railway station with regular services to Gloucester and Bristol with onward connections to the National Rail network. Dursley is also conveniently situated for commuting throughout the southwest via the A38 and M5/M4 motorway network.
DIRECTIONS
The property can be easily found on foot or by car. From the town centre proceed in a north easterly direction on the A4135 through Silver Street and continuing to the first mini roundabout, taking the first exit and bearing left into Long Street. Take the second turning on the right into Bymacks Lane and first right into Priory Close.
DESCRIPTION
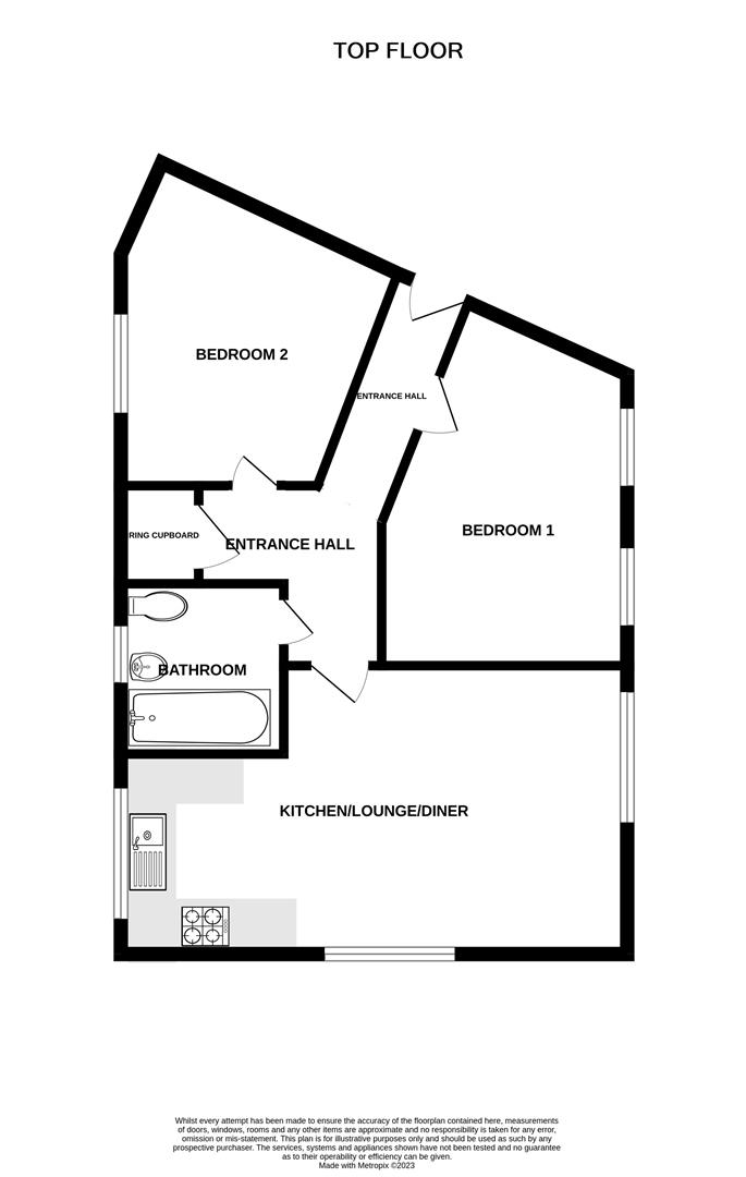
This apartment was constructed on the edge of this development approximately 20 years ago by Crest Nicholson. The property is within a short walk of the town and also open countryside. The apartment benefits from garage and has an open plan kitchen/diner/lounge area. There is a shared store inside the building for bikes or prams. The property briefly comprises; entrance hallway, two double bedrooms, bathroom, kitchen/lounge/diner. Further benefits include gas central heating and double glazing and is being sold with no onward chain.
THE ACCOMMODATION
(Please note that our room sizes are quoted in metres to the nearest one hundredth of a metre on a wall to wall basis. The imperial equivalent (included in brackets) is only intended as an approximate guide).
ENTRANCE HALLWAY
Radiator, airing cupboard with gas boiler, entry-com system.
KITCHEN/LIVING/DINING ROOM (6.31m x 3.56m narrowing 2.51m)
Fitted kitchen with base and wall units, roll top laminate work surface over, space for tall standing fridge freezer, electric oven, gas hob with hood over, space and plumbing for washing machine, stainless steel sink and drainer, double glazed windows to front side and rear with attractive outlook over trees, two radiators.
BEDROOM ONE (4.18m (max) x 3.13m)
Two double glazed Velux windows to front, radiator.
BEDROOM TWO (4.09m (max) x 3.19m (max))
Double glazed window to rear with views, radiator.
BATHROOM
Bath with shower off tap, wall mounted wash hand basin, low level WC, radiator, double glazed Velux window to rear.
EXTERNALLY
To the front of the property there is a communal doorway with entry-com system, providing access to four properties. The GARAGE (5.22m x 2.61m) is located to the far left hand side of the block at the end and has up and over door to front and double glazed window to side. There is also a large internal bin store for communal use.
AGENT'S NOTE
All mains services are believed to be connected.
Council Tax Band: B
Maintenance Fee: £1,083.42 payable twice yearly.
Ground Rent: Approximately £150 per annum.
999 year lease commenced 1 September 2005 (978 years remaining).
The service charge is reviewed yearly.
Broadband: The owner is unaware of broadband but a neighbour in the block receives 74 mbps internet speed.
For mobile signal and wireless broadband: Please see www.checker.ofcom.org.uk for more information
FINANCIAL SERVICES
We may offer prospective purchasers' financial advice in order to assist the progress of the sale. Bennett Jones Partnership introduces only to Kingsbridge Independent Mortgage Advice and if so, may be paid an introductory commission which averages £128.00.
VIEWING
By appointment with the owner's sole agents as over.