Handsome detached bay fronted house with planning for 9 apartments set in good size garden, currently in all currently 34 bedrooms, oil central heating, off-road parking for several cars, popular semi-rural location, yet within a few minutes’ drive of the A38. Gardens of approximately two Acres, Energy Rating: 94 - Planning reference Stroud District Council S.25/0930/FUL - Viewing with open houses and appointments (see brochure) Auction date 6th May 2026
SITUATION
The property occupies an extremely convenient position set in an attractive semi-rural location, yet within a few minutes drive of the A38 giving access to the M5/M4 motorway network. Also close at hand is the Cam and Dursley Railway Station with onward connections to the National Rail network. Breadstone is an attractive hamlet set in the Vale of Berkeley, the historic town of Berkeley is famous for its Castle and Jenner Museum and has a range of local shops. A wider range of shopping, educational and recreational facilities can be found in the larger centres of Dursley and Thornbury.
DIRECTIONS
If travelling on the A38 in a southerly direction from the Slimbridge roundabout, continue for approximately one mile passing the turning for Dursley on the left hand side and take the next turning right signposted Breadstone, continue for approximately half a mile and follow the road as it bears sharply to the left, continue for approximately 100 metres and Breadstone House will be found on the right hand side.
DESCRIPTION
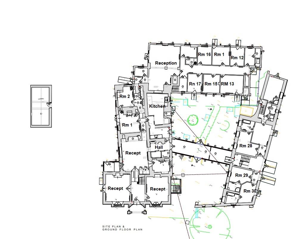
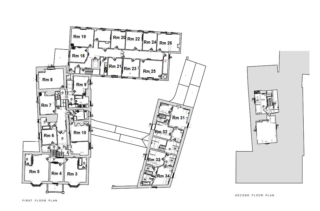
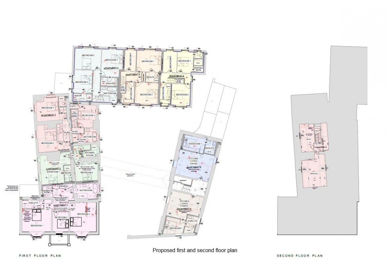
This attractive detached house is for sale by auction on 6th May 2026. The property has cut stone elevations with stone porch and double bay mullion windows to the front. The property was extended in the late 1980's and 1990's with the addition of the conversion of The Coach House with a covered walkway leading between the two sections. The property in all provides 34 bedrooms, many with en-suites and set in a good sized plot with most attractive long driveway with central turning circle. The property benefits from oil fired radiator central heating, propane gas for cooking and sewage treatment plant. The property is being offered for existing Care Use and also has planning for nine apartments, reference Stroud District Council S.25/0930/FUL Must be seen to be fully appreciated.
AGENT'S NOTES
Tenure: Freehold Mains electricity and water are believed to be connected, sewage treatment plant, oil central heating. Grade II Listed. Current planning as a Nursing Home. Planning permission was granted in March 2026 for change of use from care home (Use Class C2) to 9 apartments (Use Class C3), including internal & external alterations. Please find more details on the Stroud Council Planning Portal using the below reference number. Planning for 9 apartments, planning reference Stroud District Council S.25/0930/FUL EPC - 94 - D Joint sole agents Savills.
FINANCIAL SERVICES
We may offer prospective purchasers' financial advice in order to assist the progress of the sale. Bennett Jones Partnership introduces only to Kingsbridge Independent Mortgage Advice and if so, may be paid an introductory commission which averages £128.00.
VIEWING
By appointment on open house days :-
•24 April – 10am – 11:30am •28 April – 12 – 13:30pm •30 April – 12 – 13:30pm •2 May – 12 – 13:30pm
Auction guide & legal information
For sale by auction 6th May 2026. Our joint sole agents website carry information on auction guidelines and legal information - https://auctions.savills.co.uk/index.php?option=com_bidding&view=commission&layout=details&preview=1&
Handsome detached bay fronted house with planning for 9 apartments set in good size garden, currently in all currently 34 bedrooms, oil central heating, off-road parking for several cars, popular semi...
Handsome detached bay fronted house with planning for 9 apartments set in good size garden, currently in all currently 34 bedrooms, oil central heating, off-road parking for several cars, popular semi...
Handsome detached bay fronted house with planning for 9 apartments set in good size garden, currently in all currently 34 bedrooms, oil central heating, off-road parking for several cars, popular semi...